Уважаемые покупатели, в продаже отличный трехэтажный коттедж , построенный в 2012 году из газобетона в стиле современной классики, на ровном участке правильной формы в 16 соток.
Участок на котором построен дом, находится в конце улицы, максимально приватный и уединенный, в окружении голубых елей и соснового бора, подъездная дорога асфальтированная. Въезд на территорию коттеджного поселка через шлагбаум.
Коммуникации центральные ( газ, вода, электричество ) , канализация - септик.
Постройки : Дом 315,5 м2, гараж на 1 машиноместо + хозяйственный блок с коммуникациями и блоком управления домом, отдельно стоящий гараж на 2 машиноместа, гостевой дом 40 м2, беседка, фонтан.
Функциональная и продуманная планировка дома:
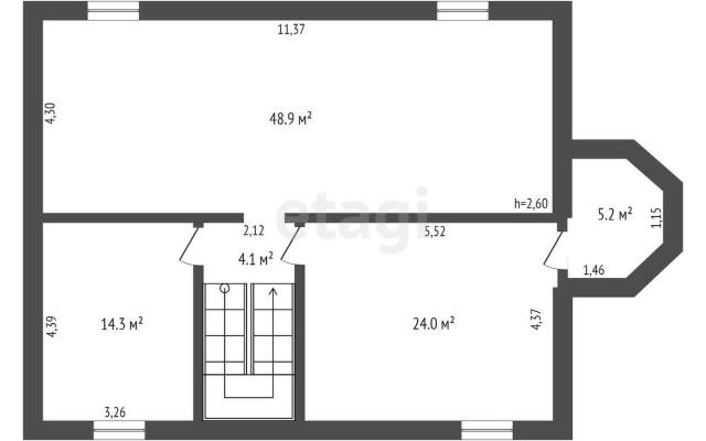
1-ый этаж: прихожая, кухня, гостиная комната с выходом на террасу, гостевая спальня, санузел, гардеробная.
цокольный этаж: SPA зона (сауна, бассейн), большая гостиная зона отдыха, постирочная, санузел.
2-ой этаж: три спальные комнаты, балкон, санузел с ванной, санузел с душем.
Дополнительно установлены видеонаблюдение и система УМНЫЙ ДОМ с дистанционным доступом, самостоятельно отслеживает и поддерживает все заданные вами параметры микроклимата в помещениях и создает комфортные условия для проживания в любое время года. Дом полностью автономен.
В доме выполнен качественный дизайнерский ремонт из натуральных, экологических, строительных и отделочных материалов.
Вся мебель, техника, элементы декора и интерьера от известных европейских дизайнеров и производителей.
Все остается в доме.
По документам : 1 взрослый собственник, чистая продажа, подходит под любую форму расчета ( ипотека / наличные ).
Дополнительно оплачивается комиссия покупателем , ЗВОНИТЕ!
О поселке: Закрытая, охраняемая территория, развито добрососедство, порядочный и приличный контингент соседей, развитая инфраструктура: Рядом База активного отдыха Кудряшовская Заимка, школа, детский сад, супермаркет, аптека, конный клуб, ледовая арена, манеж для легкой атлетики, озеро для любителей рыбалки и плавания, сосновый бор с грибными местами и шикарной природой !
Код пользователя: 147017
Номер в базе: 5410318
Комментарии
Список комментариев пуст
Оставьте свой комментарий