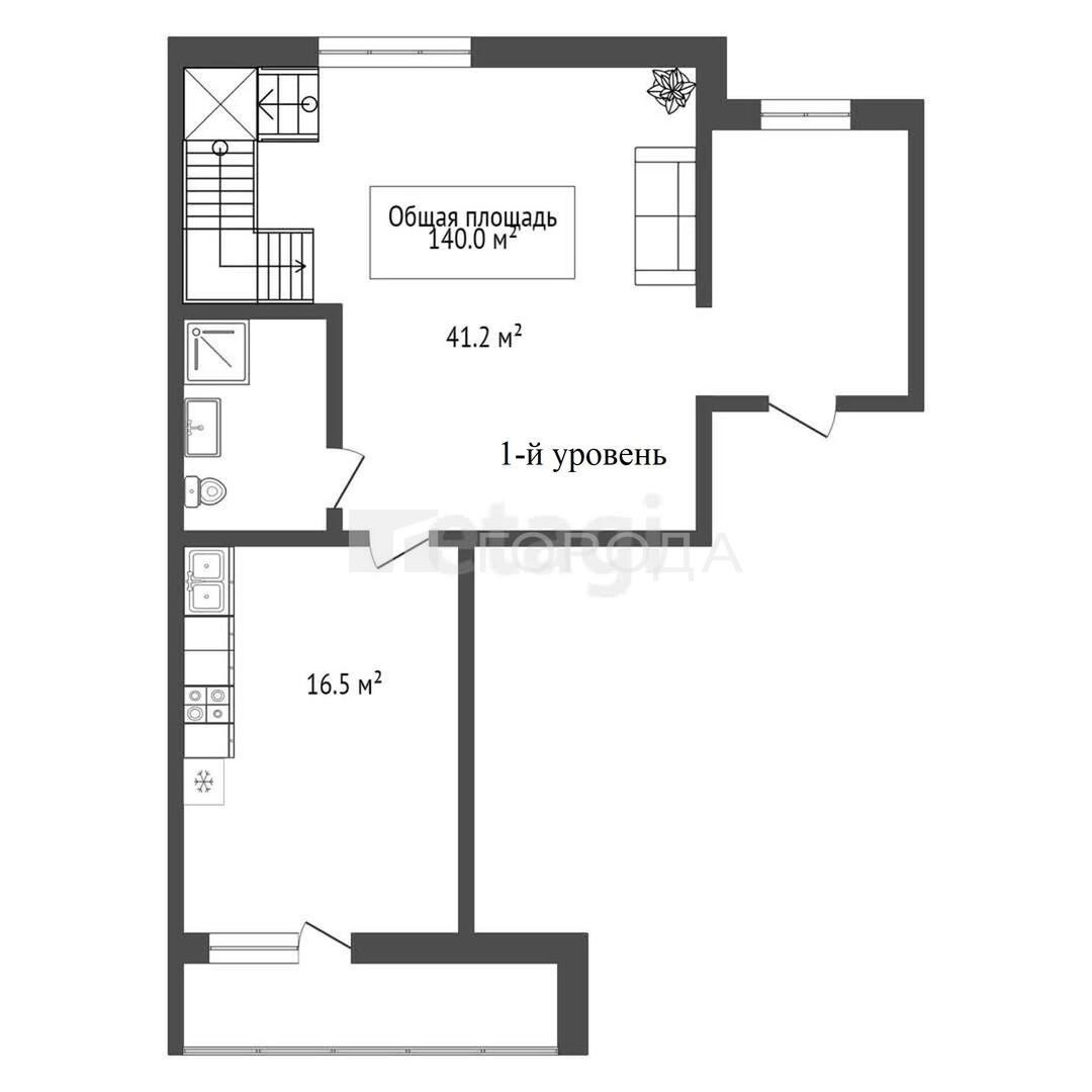
Код объекта: 1376025. Уважаемые покупатели. Предлагается к покупке просторная 2х уровневая квартира в доме классической кирпичной кладки.
Просторные комнаты, сан.узел, гостиная, 2 лоджии, окна на 2 стороны, и отсутствие шума со стороны Большевистской. Всё это далеко не все плюсы данного лота. Приходите и убедитесь сами. Квартира свободна от обременений, детских долей и иных факторов препятствующих быстрому выходу на сделку.
Местоположение дома позволяет быстро добраться в любую точку города. В относительной близости Михайловская набережная, променад Евроберега, школы, детские сады, магазины и ТЦ Лента.
Рассмотрим варианты обмена на седельные тягачи, с вашей или нашей доплатой.
Соблюдаем интересы коллег-агентов. Приобретая любой объект недвижимости через компанию Этажи вы так же получаете сертификат безопасности сделки, который страхует вас от потери права собственности. Так же помогу получить ипотеку по 2м документам с высокой вероятностью одобрения, со ставкой ниже, чем в банке.
Звоните прямо сейчас и приходите на просмотр. Доп. описание: санузел раздельный, пластиковые окна, в доме есть: детская площадка, открытый двор, наземный паркинг, гостевой паркинг, лифт пассажирский, косметический ремонт, также имеются: телефон, интернет, кабельное телевидение, счетчики холодной и горячей воды, домофон, железная дверь. Номер в базе: 10363961. Код пользователя: 96773. Район: Октябрьский.
Комментарии
Список комментариев пуст
Оставьте свой комментарий