Код объекта: 1538933. Исключительная квартира в Новосибирске по адресу улица Галущака, 15 — это Ваша уникальная возможность стать обладателем просторного и уютного жилья в современном кирпичном доме, в тихом дворе и непосредственной близости всех благ современного города.
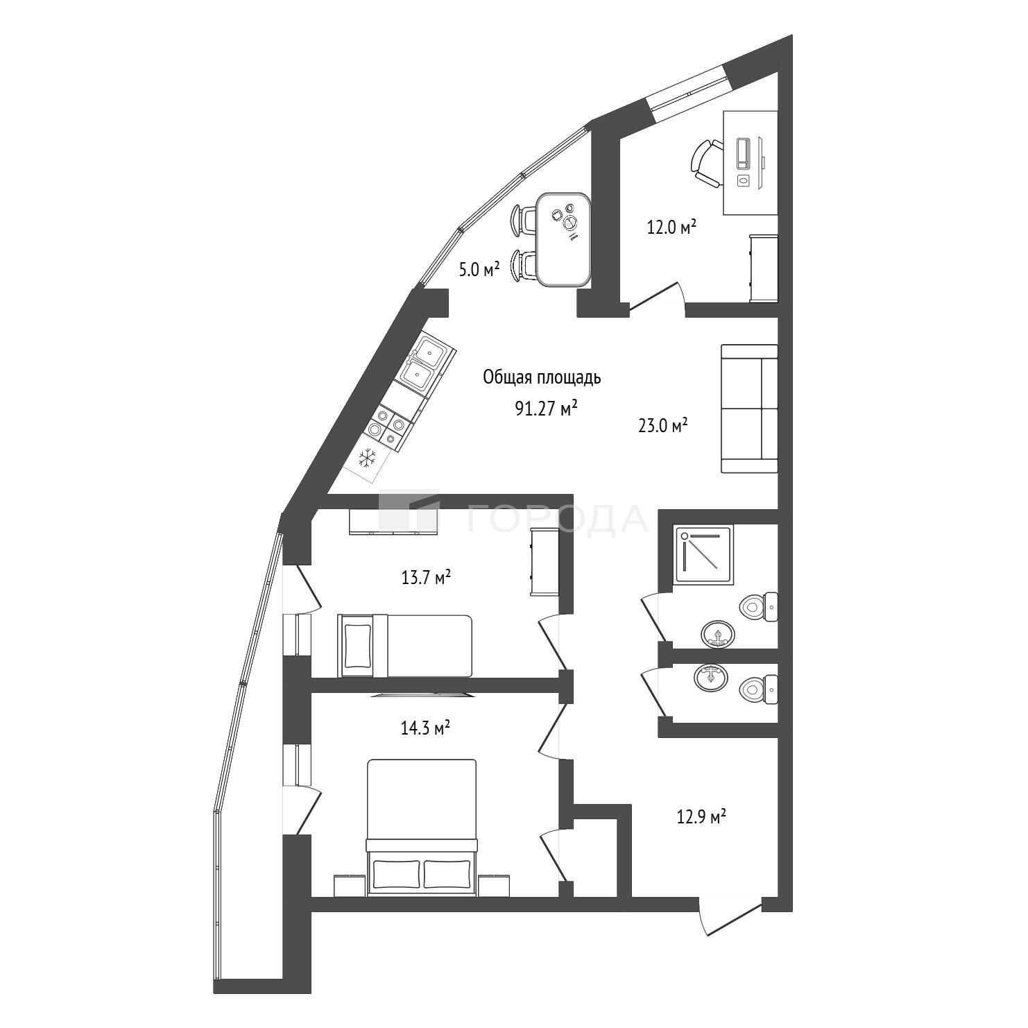
Квартира расположена на 5 этаже 24-этажного дома, построенного в 2015 году. Общая площадь составляет 91,27 кв. м, из которых 63 кв. м — жилая площадь. Высота потолков 2,7 м создаёт ощущение простора и свободы. Три изолированные комнаты, просторная кухня-гостиная, два санузла (один раздельный, один совмещённый) — всё это делает квартиру максимально удобной для проживания. Ремонт, выполненный из качественных материалов, позволит переехать сразу и будет еще долгое время радовать Вас своей эстетикой. В комнатах наклеены обои, полы выстланы плиткой ПВХ, в санузлах качественная кафельная плитка.
На кухне площадью 13 кв. м с лёгкостью разместится вся необходимая техника. Кухонный гарнитур модульный, легко может быть перестроен под Ваш запрос мебельным мастером. На утепленной лоджии рядом с кухней удачно размещается обеденный стол для семейной трапезы. Балкон предоставляет дополнительные возможности для отдыха и хранения. Окна выходят на западную сторону, а расположение квартиры обеспечивает хорошую освещённость и тепло.
В прихожей расположен вместительный встроенный шкаф. В спальне - большая светлая гардеробная. Вся мебель и техника, остаются новым жильцам. Если есть необходимость что-то вывести, об этом тоже можно легко договориться.
Развитая инфраструктура района, наземная парковка, огороженная территория — всё это дополнительные преимущества данной квартиры.
Звоните нам прямо сейчас, чтобы узнать больше и записаться на просмотр! Мы гарантируем безопасную сделку и юридическую поддержку нашим Клиентам. Поможем одобрить ипотеку со сниженной ставкой.
Комментарии
Список комментариев пуст
Оставьте свой комментарий