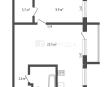
Код объекта: 1370238. 15 причин купить эту квартиру: 1.Современный ремонт. Удобная, функциональная планировка. Увеличена площадь ванной комнаты, выполнено зонирование - отделена кухня и коридор. В спальне отдельно выделена гардеробная комната. Перепланировка проверялась банком, одобрили ипотеку, обременение 1,2 млн (можем закрыть самостоятельно), прописаны два взрослых и ребенок.
Выровнены стены. Сняли деревянный пол, увеличили высоту потолков.
Установлены биметаллические радиаторы, натяжные потолки. Смонтирована по месту кухня под заказ с качественной фурнитурой.
Остекленный балкон, окна в пол.
2. Хороший вид и тихий двор (не пыли и шума с улицы, не слышно трамваев).
3. Территория дома огорожена, установлена система видеонаблюдения как на улице, так и в подъезде. Доступ через автоматические ворота.
4. Выполнен капитальный ремонт крыши десять лет, пару лет назад ремонт в подъезде. Дом управляется ТСЖ.
5. Плюсом к квартире идет теплая и сухая кладовка в подвале дома. 6. Мебель и техника по договоренности. 7. Близость к метро Сибирская, Красный проспект 3 мин пешком 8. Пешая доступность к двум остановкам общественного транспорта (автобусы, трамвай) 1-3 мин 9. Пешая доступность до Нарымского сквера 15 мин (фонтан, детские развлечения, лавочки, часто летом проводят различные мероприятия в формате йога на траве или кино на траве) 10. Школы 4, 54 11. Детские сады 368, 34, 486, 24 12. Рядом Университет водного транспорта, Техникум науки и картографии, Налоговая 13. Крупный ТЦ с кинотеатром и развлечениями и всем необходимым Галерея и Москва 14. Центральный рынок с Гастрокортом 15. Бассейн Спартак, зимний Каток 16. Поликлиника, больница 1
Ждём вас на просмотр! Звоните в любое время, готовы ответить на все вопросы!
Комментарии
Список комментариев пуст
Оставьте свой комментарий