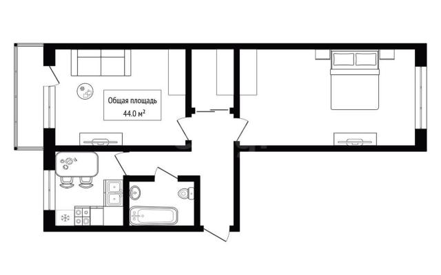
Продаётся просторная 2-комнатная квартира в доме с развитой инфраструктурой, расположенном в шаговой доступности от станции метро «Золотая Нива» — всего 7 минут пешком.
Район отличается удобной транспортной развязкой, что обеспечивает быстрый выезд в любую часть города. В непосредственной близости находятся школы, детские сады, поликлиники, супермаркеты, кафе и фитнес-центры, что делает проживание здесь комфортным и практичным.
Квартира полностью готова к заселению — выполнен качественный современный ремонт с использованием долговечных материалов. Все инженерные коммуникации заменены: обновлены системы отопления, водоснабжения и электросети. Благодаря удачному расположению окон в квартире всегда много естественного света. Балкон оборудован панорамным остеклением с энергосберегающими стеклопакетами и дополнительным освещением, что позволяет использовать его как функциональное продолжение жилого пространства.
Санузел отделан керамогранитом, установлена современная сантехника и система тёплого пола, что обеспечивает комфорт в любое время года. Планировка квартиры рациональная: изолированные комнаты, прихожая с возможностью организации удобной системы хранения.
Документы подготовлены для быстрого оформления сделки. В квартире никто не зарегистрирован долгов нет.
Готовы организовать просмотр в удобное для вас время. Звоните!
Предоставляем консультационную поддержку по вопросам ипотечного кредитования для упрощения процесса покупки.
Звоните!
Код пользователя: 180559
Номер в базе: 6821354
Комментарии
Список комментариев пуст
Оставьте свой комментарий