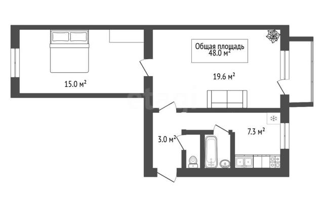
Уютная двухкомнатная квартира в зелёном быстро развивающемся районе Новосибирска.
Кирпичная кладка дома гарантирует комфортное проживание в данном доме. Квартира наполнена светом благодаря оформлению в светлых тонах. Здесь легко представить себя среди домашней атмосферы после насыщенного рабочего дня. Вкладывать деньги в ремонт квартиры не нужно. Комфорт обеспечат современные коммуникации и качественный ремонт с использованием экологичных материалов. Обогреватель для горячей воды обеспечит комфорт в условиях плановых отключений горячей воды, а система теплый пол - тепло и уют круглый год. Расположение квартиры на первом этаже не должно Вас омрачать, ввиду высокого размещения окон.
Безопасность обеспечивается видеонаблюдением и закрытой территорией жилого комплекса.
На территории комплекса предусмотрены несколько детских площадок, волейбольная площадка, озеленение, ландшафтный дизайн, большое количество парковочных мест, а также в наличии подземная двухуровневая парковка.
Район располагает всеми необходимыми объектами инфраструктуры: детские сады, школы, поликлиники, фитнес-клубы и супермаркеты находятся буквально в нескольких минутах ходьбы. А также в наличие транспортная доступность, что дает возможность быстро добраться в любое место города. В шаговой доступности находится университет.
Для любителей природы возможны прогулки по сосновому бору. В бору летом можно устраивать пробежки, прогулки на велосипеде, а зимой катание на лыжах.
Квартира интересна как для молодых семейных пар, а также для людей зрелого возраста, а также молодых людей.
Ваш будущий дом ждет только Вас и станет источником вдохновения и спокойствия каждый день.
Документы готовы к продаже!
Не упустите шанс на идеальное жилье для комфортной жизни! Звоните, чтобы узнать подробности и приехать на просмотр!
Код пользователя: 72270
Номер в базе: 7709758
Комментарии
Список комментариев пуст
Оставьте свой комментарий