Продам, квартира во вторичке, россия, новосибирская область, городской округ новосибирск, новосибирск, кировский район, затулинский жилмассив, улица зорге, 63, 4200000 руб.
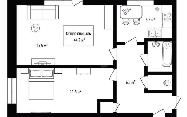
В продаже просторная 2х-комнатная квартира, расположена на 6 этаже кирпичного дома в центре Затулинского жилмассива. Дом с одним подъездом обеспечивает минимум соседей и тихий двор без лишнего шума. Квартира с косметическим ремонтом готова к заселению. Планировка функциональная: изолированные комнаты с выходом на балкон, прихожая с кладовой для хранения. Бонусом новым владельцам останется кладовая в подвале.
Расположение — ключевое преимущество. В пешей доступности (5–7 минут) вся необходимая инфраструктура: детские сады, школы, поликлиника, спортивный комплекс с бассейном и ледовой ареной, фитнес-клубы, банки и парк с аллеями для прогулок. Рядом остановки общественного транспорта с маршрутами в центр города и к станции метро «Карла Маркса». Для автомобилистов удобный выезд на основные магистрали — улицы Ватутина и Петухова.
Объект продается с полным пакетом документов, один собственник, отсутствие обременений и долгов по коммунальным платежам. Идеальный вариант для тех, кто ценит удобное расположение, развитую инфраструктуру и готовое жилье без необходимости дополнительных вложений. Квартира подойдет как для постоянного проживания семьи, так и для инвестиции — район пользуется стабильным спросом у арендаторов. Для просмотра и оформления сделки доступна любая удобная дата.
Код пользователя: 76561
Номер в базе: 8905166
Комментарии
Список комментариев пуст
Оставьте свой комментарий