Уважаемый покупатель!
В продаже 4-комнатная двухуровневая квартира в доме классической кирпичной кладки, которая станет идеальным местом для комфортной жизни вашей семьи!
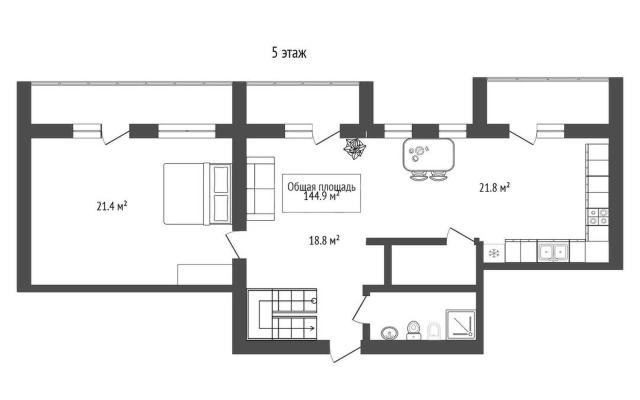
Квартира обладает функциональной и удобной планировкой, которая включает в себя: на втором этаже три просторные спальни, просторный современный санузел, гардеробная, на первом этаже — зал, кухня-гостиная, постирочная, санузел. Каждое пространство продумано до мелочей, чтобы обеспечить вам максимальный комфорт и уют.
В кухне-гостиной и в санузле установлен теплый пол, бойлер на всю квартиру(важно на период отключения воды), трассы кондиционеров в кухне-гостиной и в спальне.
Вход в квартиру возможен как с 5-го, так и с 6-го этажа, что добавляет удобства.
В квартире остается вся мебель, включая встроенный кухонный гарнитур с современной бытовой техникой (варочная панель, духовой шкаф, посудомоечная машинка), а также встроенные шкафы-купе, гардеробные, кровати, диван. Вам не придется тратить время и средства на обустройство — просто заезжайте и наслаждайтесь жизнью!
Территория дома огорожена, что обеспечивает безопасность и спокойствие. Вы сможете воспользоваться как наземной, так и подземной парковкой.
В продаже имеется парковочное место в подземном паркинге!
Удобное расположение квартиры — вторая линия от дороги — гарантирует тишину и спокойствие. В шаговой доступности находятся школы №20, 175, 94, 40, детские сады, различные магазины, аптеки, банки, пункты выдачи и остановка общественного транспорта. Всего 15 минут пешком до станции метро Маркса!
Чистая продажа, обременений нет, быстрый выход на сделку. Подходит под любой способ расчета.
Приглашаем вас на просмотр!
Код пользователя: 220466
Номер в базе: 6787350
Комментарии
Список комментариев пуст
Оставьте свой комментарий